RELUXIA GRANDE 川崎 川崎の1K賃貸マンション
- 11.95万円 / 管理費: 無 / 共益費:10,000円
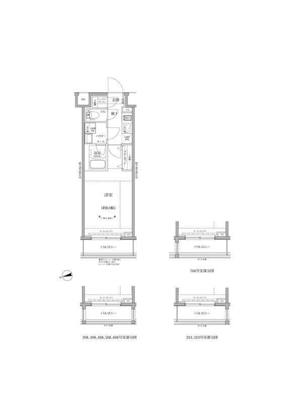
- 間取り:1K / 専有面積:25.07m2
- 敷金:0ヶ月 / 礼金:1ヶ月 / 保証金:0ヶ月 / 敷引・償却: 0ヶ月-
【スタッフからのイチオシポイント!】RELUXIA GRANDE 川崎
★顔認証セキュリティ・ペット可新築マンション★
神奈川県川崎市幸区幸町2丁目【JR京浜東北・根岸線 川崎駅徒歩7分】にある1K賃貸マンションです。
新築築の7階建てのマンションで、お部屋は7階建ての5階部分です。
物件の広さは25.07m 2で人気の1Kです。
※お部屋のもっと詳しい内容や入居時期、諸条件のご相談など、ホームページには掲載が間に合わず載せきれていない情報もございます。 気になることが御座いましたらお気軽にメールにてお問い合わせください。
044-210-0330
エリア・エステート川崎店
お問い合わせNO:RHS-1121881
| 所在地 |
神奈川県川崎市幸区幸町2丁目 周辺MAP |
| 交通 |
JR京浜東北・根岸線 「川崎駅」 徒歩7分
京急本線 「京急川崎駅」 徒歩8分
|
| 種別 / 構造 |
マンション / RC造(鉄筋コンクリート造) |
主要採光面 |
西 |
所在階 / 階数 |
5階 / 7階 |
| 築年月 |
新築 |
間取り |
1K( 洋室8畳 ) |
専有面積 |
25.07m2 |
| 損保 |
要 |
更新料 |
|
鍵交換代 |
- |
| 駐車場 |
|
近隣駐車場 |
|
契約期間 借家区分 |
2年 普通 |
| 現況 |
未完成 |
入居可能日 |
2026年5月上旬 |
取引態様 |
媒介 |
| 保証人代行会社 |
初回保証料:50%or60% |
仲介手数料 |
|
バイク置き場 |
|
| その他費用 |
-
入居サポート
18,700円
-
顔認証登録費/人
7,700円
-
-
-
|
| キッチン |
|
| バス・トイレ |
- 給湯
- バストイレ別
- シャワー
- 浴室乾燥機
- 洗面所独立
- 温水洗浄便座
- 室内洗濯機置き場
|
| 住空間 |
|
| 設備・サービス |
- クロゼット
- シューズボックス
- TVインターホン
- オートロック
- エレベーター
- 宅配ボックス
- 駐輪場
- バイク置場
- 光ファイバー
- 防犯カメラ
- ネット使用料不要
- 24時間ゴミ出し可
|
| 特 徴 |
|
| 条件・その他 |
ガス:都市 / 水道:公営 / 排水:下水 / ペット:対応 / 保証人代行:必加入 |
| コメント |
★顔認証セキュリティ・ペット可新築マンション★ |
| 備 考 |
◆「クレジッドカード支払い可」◆「初期費用の分割・相談」◆「内覧希望」◆「急ぎの入居」◆「法人契約」◆「保証人不要」◆「入居条件の相談」◆等、何でもお気軽にご相談下さい。 |
| 情報更新日:2026年04月19日 |
次回更新予定日:2026年05月03日 |
※各種情報と差異がある場合は現況優先となります
※物件情報の学区情報について
当サイト物件情報に記載されております通学区域(学区)情報は、国土数値情報ダウンロードサービスが提供する小学校区データ【2016年度】及び中学校区データ【2016年度】を元に加工したものですので、記載情報が現在の学区域と異なる場合がございます。国土数値情報ダウンロードサービスのWEBサイト上で記述通り、データは必ずしも正確とは言えません。また、通学区域(学区)は毎年見直しの対象となりますので、そちらを踏まえ学区情報は参考としてご活用下さい。
こちらの物件の空室状況
|
| 所在階 |
賃料 |
共益費 / 管理費 |
間取り |
専有面積 |
敷金 |
礼金 |
お気に入り |
物件詳細 |
| 2階 |
11.8万円 |
10,000円 / - |
1K |
25.07m2 |
0ヶ月 |
1ヶ月 |
お気に入り |
物件詳細 |
| 2階 |
11.8万円 |
10,000円 / - |
1K |
25.07m2 |
0ヶ月 |
1ヶ月 |
お気に入り |
物件詳細 |
| 2階 |
11.8万円 |
10,000円 / - |
1K |
25.07m2 |
0ヶ月 |
1ヶ月 |
お気に入り |
物件詳細 |
| 3階 |
11.85万円 |
10,000円 / - |
1K |
25.07m2 |
0ヶ月 |
1ヶ月 |
お気に入り |
物件詳細 |
| 3階 |
11.85万円 |
10,000円 / - |
1K |
25.07m2 |
0ヶ月 |
1ヶ月 |
お気に入り |
物件詳細 |
| 3階 |
11.85万円 |
10,000円 / - |
1K |
25.07m2 |
0ヶ月 |
1ヶ月 |
お気に入り |
物件詳細 |
| 3階 |
11.85万円 |
10,000円 / - |
1K |
25.07m2 |
0ヶ月 |
1ヶ月 |
お気に入り |
物件詳細 |
| 4階 |
11.9万円 |
10,000円 / - |
1K |
25.07m2 |
0ヶ月 |
1ヶ月 |
お気に入り |
物件詳細 |
| 5階 |
11.95万円 |
10,000円 / - |
1K |
25.07m2 |
0ヶ月 |
1ヶ月 |
お気に入り |
物件詳細 |
| 5階 |
11.95万円 |
10,000円 / - |
1K |
25.07m2 |
0ヶ月 |
1ヶ月 |
お気に入り |
物件詳細 |
| 5階 |
11.95万円 |
10,000円 / - |
1K |
25.07m2 |
0ヶ月 |
1ヶ月 |
お気に入り |
物件詳細 |
| 5階 |
11.95万円 |
10,000円 / - |
1K |
25.07m2 |
0ヶ月 |
1ヶ月 |
お気に入り |
物件詳細 |
| 7階 |
12.15万円 |
10,000円 / - |
1K |
25.07m2 |
0ヶ月 |
1ヶ月 |
お気に入り |
物件詳細 |
| 7階 |
12.15万円 |
10,000円 / - |
1K |
25.07m2 |
0ヶ月 |
1ヶ月 |
お気に入り |
物件詳細 |
| 7階 |
12.15万円 |
10,000円 / - |
1K |
25.07m2 |
0ヶ月 |
1ヶ月 |
お気に入り |
物件詳細 |
| 7階 |
12.15万円 |
10,000円 / - |
1K |
25.07m2 |
0ヶ月 |
1ヶ月 |
お気に入り |
物件詳細 |
|
044-210-0330
エリア・エステート川崎店
お問い合わせNO:RHS-1121881
この物件に似た物件をチェック!
-
賃貸マンション 12.3万円
川崎駅 徒歩10分 1LDK(33.73u)
-
賃貸マンション 11.2万円
川崎駅 徒歩14分 ワンルーム(44.28u)
-
賃貸マンション 11.1万円
川崎駅 徒歩7分 1K(25.02u)
-
賃貸マンション 11万円
川崎駅 徒歩9分 1K(33.20u)
|