| ||||||||||||||||||||||||||||||||||||||||||||||||||||||||||||||||||||||||||||||||||||||||||||||
|
||||

物件基本情報 |
| 所在地 | 東京都大田区大森西5丁目 |
||||
|---|---|---|---|---|---|
| 交通 | 京急本線 「大森町駅」 徒歩8分 京急本線 「梅屋敷駅」 徒歩11分 |
||||
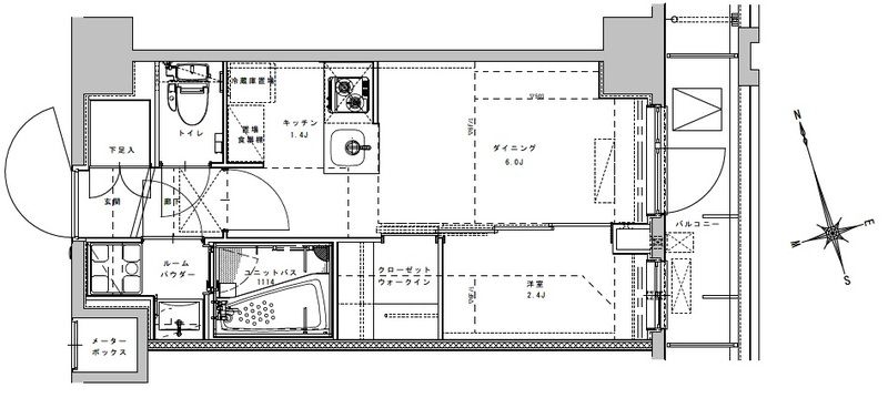
| 種別 / 構造 | マンション / RC造(鉄筋コンクリート造) | 主要採光面 | 東 | 所在階 / 階数 | 3階 / 8階 |
| 築年月 | 2022年3月 | 間取り | 1DK( DK7.4畳/洋室2.4畳 ) | 専有面積 | 25.6m2 |
物件詳細情報 |
| 損保 | 要 | 更新料 | 鍵交換代 | - | |
|---|---|---|---|---|---|
| 駐車場 | 近隣駐車場 | 契約期間 借家区分 |
2年 普通 | ||
| 現況 | 居住中 | 入居可能日 | 即入居可 | 取引態様 | 媒介 |
| 保証人代行会社 | 初回保証料:賃料等の50%(連保無)30%(連保有)・更新料:賃料等の25%/年 | 仲介手数料 | バイク置き場 | ||
| その他費用 |
|
||||
設備詳細情報 |
| キッチン |
|
|---|---|
| バス・トイレ |
|
| 住空間 |
|
| 設備・サービス |
|
| 特 徴 | |
| 条件・その他 | ガス:都市 / 水道:公営 / 排水:下水 / 保証人代行:必加入 |
| コメント | ★閑静な住宅街・デザイナーズマンション★ |
| 備 考 | ◆「クレジッドカード支払い可」◆「初期費用の分割・相談」◆「内覧希望」◆「急ぎの入居」◆「法人契約」◆「保証人不要」◆「入居条件の相談」◆等、何でもお気軽にご相談下さい。 |
学区情報 |
| 小学校区 | () |
中学校区 | () |
|---|
| 情報更新日:2026年04月24日 | 次回更新予定日:2026年05月08日 |
こちらの物件の空室状況 |
賃貸マンション 12.3万円
大森町駅 徒歩1分
1K(25.17u)
★最寄り駅まで1分と好立地★
賃貸マンション 12万円
大森町駅 徒歩3分
1LDK(27.91u)
【インターネット無料】【オートロック】【都市ガス】

|