| ||||||||||||||||||||||||||||||||||||||||||||||||||||||||||||||||||||||||||||||||||||||||||||||
|
||||

物件基本情報 |
| 所在地 | 神奈川県横浜市港南区丸山台1丁目 |
||||
|---|---|---|---|---|---|
| 交通 | 横浜市営地下鉄ブルーライン 「上永谷駅」 徒歩2分 横浜市営地下鉄ブルーライン 「下永谷駅」 徒歩22分 |
||||
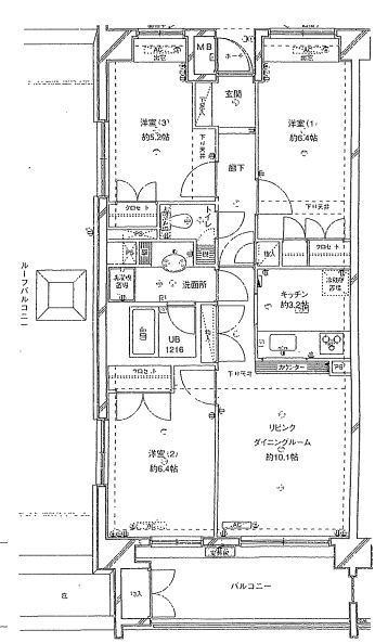
| 種別 / 構造 | マンション / RC造(鉄筋コンクリート造) | 主要採光面 | 南 | 所在階 / 階数 | 6階 / 6階 |
| 築年月 | 1999年3月 | 間取り | 3LDK( LDK13.3畳/洋室6.4畳/洋室6.4畳/洋室5.4畳 ) | 専有面積 | 69.95m2 |
物件詳細情報 |
| 損保 | 要 | 更新料 | 鍵交換代 | - | |
|---|---|---|---|---|---|
| 駐車場 | 近隣駐車場 | 契約期間 借家区分 |
2年 普通 | ||
| 現況 | 空家 | 入居可能日 | 即入居可 | 取引態様 | 媒介 |
| 保証人代行会社 | 初回保証料:総賃料50% 毎月:総賃料1.3% | 仲介手数料 | バイク置き場 | ||
| その他費用 |
|
||||
設備詳細情報 |
| キッチン |
|
|---|---|
| バス・トイレ |
|
| 住空間 |
|
| 設備・サービス |
|
| 特 徴 | |
| 条件・その他 | ガス:都市 / 水道:公営 / 排水:下水 / 2人入居:可 / 保証人代行:必加入 |
| コメント | 【上永谷駅徒歩2分・ルーフバルコニーも使える3LDK】 |
| 備 考 | ☆ご希望の方には「申込~入居」までご来店無しで対応出来ます☆「クレジッドカード支払い」☆「初期費用の分割・相談」☆「資料の送付」☆等、お気軽にご連絡ください。 解約時清掃費:1320円/平米 エアコン清掃費:13200円/台 ルーフバルコニー使用料:10000円/月 |
学区情報 |
| 小学校区 | () |
中学校区 | () |
|---|
| 情報更新日:2026年04月23日 | 次回更新予定日:2026年05月07日 |
こちらの物件の空室状況 |

|