| ||||||||||||||||||||||||||||||||||||||||||||||||||||||||||||||||||||||||||||||||||||||||||||||
|
||||

物件基本情報 |
| 所在地 | 神奈川県横浜市中区長者町5丁目 |
||||
|---|---|---|---|---|---|
| 交通 | 横浜市営地下鉄ブルーライン 「伊勢佐木長者町駅」 徒歩2分 JR京浜東北・根岸線 「関内駅」 徒歩7分 |
||||
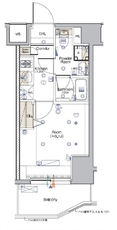
| 種別 / 構造 | マンション / RC造(鉄筋コンクリート造) | 主要採光面 | 南西 | 所在階 / 階数 | 3階 / 11階 |
| 築年月 | 2020年3月 | 間取り | 1K( 洋室6.1畳/K1.5畳 ) | 専有面積 | 21.01m2 |
物件詳細情報 |
| 損保 | 要 | 更新料 | 鍵交換代 | - | |
|---|---|---|---|---|---|
| 駐車場 | 近隣駐車場 | 契約期間 借家区分 |
2年 普通 | ||
| 現況 | 居住中 | 入居可能日 | 2026年5月下旬 | 取引態様 | 媒介 |
| 保証人代行会社 | 初回保証料:総賃料の50% 月額保証料:1.2% | 仲介手数料 | バイク置き場 | ||
| その他費用 |
|
||||
設備詳細情報 |
| キッチン |
|
|---|---|
| バス・トイレ |
|
| 住空間 |
|
| 設備・サービス |
|
| 特 徴 | |
| 条件・その他 | ガス:都市 / 水道:公営 / 排水:下水 / 保証人代行:必加入 |
| コメント | 【最寄り駅徒歩2分の設備充実分譲賃貸】 |
| 備 考 | ☆ご希望の方には「申込~入居」までご来店無しで対応出来ます☆「クレジッドカード支払い」☆「初期費用の分割・相談」☆「資料の送付」☆等、お気軽にご連絡ください。 駐輪場:500円/月 |
学区情報 |
| 小学校区 | () |
中学校区 | () |
|---|
| 情報更新日:2026年04月15日 | 次回更新予定日:2026年04月29日 |
こちらの物件の空室状況 |
賃貸マンション 7.5万円
関内駅 徒歩10分
1K(24.72u)
オートロック付き駅徒歩4分物件。暮らしやすい角部屋です。
賃貸マンション 8.25万円
伊勢佐木長者町駅 徒歩3分
1K(21.67u)
引っ越し後すぐに利用可能の無料インターネット付き!

|