レジディア蒲田II 蒲田の1K賃貸マンション!|エリアエステート

TOPページ
賃貸物件検索
大田区の賃貸情報一覧
レジディア蒲田II 蒲田の1K賃貸マンション

レジディア蒲田II 蒲田の1K賃貸マンション 

  • 11.9万円 / 管理費: 無 / 共益費:15,000円
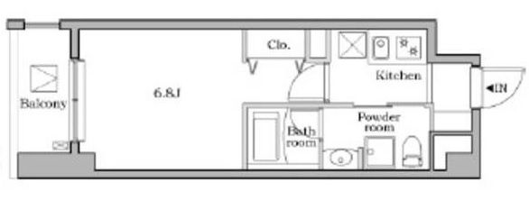
  • 間取り:1K / 専有面積:22.59m2
  • 敷金:0ヶ月 / 礼金:0ヶ月 / 保証金:0ヶ月 / 敷引・償却: 0ヶ月-
【建物外観】 JR蒲田駅から徒歩5分のマンションです。 【間取】 居室とキッチンが別々の1Kタイプの間取りです。 【居間・リビング】 明るい色の床材を使用した居住空間 【寝室】 フローリングのお部屋です。 【収納】 ハンガーポール付のクローゼット 【キッチン】 ガスコンロ2口付のシステムキッチンです。 【キッチン】 バス・トイレ別です 【洗面所】 あると便利な独立洗面台です。 【トイレ】 温水洗浄便座付トイレ 【その他】 TVモニター付インターフォン 【バス】 浴室乾燥機付のバスルーム 【その他設備】 もちろんエアコン完備 【その他設備】 防水パン付きの室内洗濯機置場 【その他】 雨の日のお洗濯に便利な「浴室換気乾燥機」です。 【その他】 その他スペース 【収納】 シューズボックス 【玄関】 玄関から。 【バルコニー】 バルコニー 【エントランス】 エントランス 【エントランス】 エントランス 【その他】 安心の「オートロックセキュリティ」です。 【その他】 不在時でも荷物を受け取れる、「あると便利な宅配BOX」 【その他】 集合ポスト 【その他】 エレベーター 【その他】 防犯カメラ 【その他】 敷地内ゴミ捨て場 【その他】 駐輪場 【周辺】 【スーパー】マルエツ「かまた店」まで21m 【周辺】 【スーパー】まいばすけっと「環八蒲田5丁目店」まで243m 【周辺】 【スーパー】「蒲田プラザ東急ストア」まで505m
【建物外観】 JR蒲田駅から徒歩5分のマンションです。
【間取】 居室とキッチンが別々の1Kタイプの間取りです。
【居間・リビング】 明るい色の床材を使用した居住空間
【寝室】 フローリングのお部屋です。
【収納】 ハンガーポール付のクローゼット
【キッチン】 ガスコンロ2口付のシステムキッチンです。
【キッチン】 バス・トイレ別です
【洗面所】 あると便利な独立洗面台です。
【トイレ】 温水洗浄便座付トイレ
【その他】 TVモニター付インターフォン
【バス】 浴室乾燥機付のバスルーム
【その他設備】 もちろんエアコン完備
【その他設備】 防水パン付きの室内洗濯機置場
【その他】 雨の日のお洗濯に便利な「浴室換気乾燥機」です。
【その他】 その他スペース
【収納】 シューズボックス
【玄関】 玄関から。
【バルコニー】 バルコニー
【エントランス】 エントランス
【エントランス】 エントランス
【その他】 安心の「オートロックセキュリティ」です。
【その他】 不在時でも荷物を受け取れる、「あると便利な宅配BOX」
【その他】 集合ポスト
【その他】 エレベーター
【その他】 防犯カメラ
【その他】 敷地内ゴミ捨て場
【その他】 駐輪場
【周辺】 【スーパー】マルエツ「かまた店」まで21m
【周辺】 【スーパー】まいばすけっと「環八蒲田5丁目店」まで243m
【周辺】 【スーパー】「蒲田プラザ東急ストア」まで505m
  • 【建物外観】 JR蒲田駅から徒歩5分のマンションです。
  • 【間取】 居室とキッチンが別々の1Kタイプの間取りです。
  • 【居間・リビング】 明るい色の床材を使用した居住空間
  • 【寝室】 フローリングのお部屋です。
  • 【収納】 ハンガーポール付のクローゼット
  • 【キッチン】 ガスコンロ2口付のシステムキッチンです。
  • 【キッチン】 バス・トイレ別です
  • 【洗面所】 あると便利な独立洗面台です。
  • 【トイレ】 温水洗浄便座付トイレ
  • 【その他】 TVモニター付インターフォン
  • 【バス】 浴室乾燥機付のバスルーム
  • 【その他設備】 もちろんエアコン完備
  • 【その他設備】 防水パン付きの室内洗濯機置場
  • 【その他】 雨の日のお洗濯に便利な「浴室換気乾燥機」です。
  • 【その他】 その他スペース
  • 【収納】 シューズボックス
  • 【玄関】 玄関から。
  • 【バルコニー】 バルコニー
  • 【エントランス】 エントランス
  • 【エントランス】 エントランス
  • 【その他】 安心の「オートロックセキュリティ」です。
  • 【その他】 不在時でも荷物を受け取れる、「あると便利な宅配BOX」
  • 【その他】 集合ポスト
  • 【その他】 エレベーター
  • 【その他】 防犯カメラ
  • 【その他】 敷地内ゴミ捨て場
  • 【その他】 駐輪場
  • 【周辺】 【スーパー】マルエツ「かまた店」まで21m
  • 【周辺】 【スーパー】まいばすけっと「環八蒲田5丁目店」まで243m
  • 【周辺】 【スーパー】「蒲田プラザ東急ストア」まで505m

【スタッフからのイチオシポイント!】レジディア蒲田II

【駅チカ】【オートロック】【宅配BOX】【都市ガス】
東京都大田区蒲田5丁目【JR京浜東北・根岸線 蒲田駅徒歩5分】にある1K賃貸マンションです。
2006年9月築の15階建てのマンションで、お部屋は15階建ての10階部分です。
物件の広さは22.59m2で人気の1Kです。
※お部屋のもっと詳しい内容や入居時期、諸条件のご相談など、ホームページには掲載が間に合わず載せきれていない情報もございます。
気になることが御座いましたらお気軽にメールにてお問い合わせください。
エリアグループの強み
初期費用クレジットカード・PayPay決済サービス
044-210-0330
エリア・エステート川崎店
お問い合わせNO:RHS-1122918

物件基本情報

所在地 東京都大田区蒲田5丁目   周辺MAP
交通 JR京浜東北・根岸線 「蒲田駅」 徒歩5分
京急本線 「京急蒲田駅」 徒歩11分
種別 / 構造 マンション / RC造(鉄筋コンクリート造) 主要採光面 西 所在階 / 階数 10階 / 15階
築年月 2006年9月  間取り 1K( 洋室6.8畳/K1.5畳 ) 専有面積 22.59m2

物件詳細情報

損保 更新料 鍵交換代 -
駐車場 近隣駐車場   契約期間
借家区分
2年 普通
現況 居住中 入居可能日 即入居可 取引態様 媒介
保証人代行会社  初回保証料:賃料等の40%、年間保証料:10000円、月額:1000円 仲介手数料 バイク置き場
その他費用
  • 鍵交換費用 22,000円
  • 入居者限定サービス 11,000円

設備詳細情報

キッチン
  • システムキッチン
  • 2口コンロ
バス・トイレ
  • 給湯
  • バストイレ別
  • シャワー
  • 浴室乾燥機
  • 洗面所独立
  • 温水洗浄便座
  • 室内洗濯機置き場
住空間
  • バルコニー
  • フローリング
  • エアコン
設備・サービス
  • クロゼット
  • シューズボックス
  • TVインターホン
  • オートロック
  • エレベーター
  • 宅配ボックス
  • 駐輪場
  • 光ファイバー
  • CS
  • BS
  • CATV
  • 防犯カメラ
特 徴
条件・その他  ガス:都市 / 水道:公営 / 排水:下水 / 保証人代行:必加入
コメント 【駅チカ】【オートロック】【宅配BOX】【都市ガス】
備 考 ネット利用1650円(月額) ◆「クレジッドカード支払い可」◆「初期費用の分割・相談」◆「内覧希望」◆「急ぎの入居」◆「法人契約」◆「保証人不要」◆「入居条件の相談」◆等、何でもお気軽にご相談下さい。

学区情報

小学校区
()
中学校区
()
情報更新日:2026年04月24日 次回更新予定日:2026年05月08日
※各種情報と差異がある場合は現況優先となります
※物件情報の学区情報について
当サイト物件情報に記載されております通学区域(学区)情報は、国土数値情報ダウンロードサービスが提供する小学校区データ【2016年度】及び中学校区データ【2016年度】を元に加工したものですので、記載情報が現在の学区域と異なる場合がございます。国土数値情報ダウンロードサービスのWEBサイト上で記述通り、データは必ずしも正確とは言えません。また、通学区域(学区)は毎年見直しの対象となりますので、そちらを踏まえ学区情報は参考としてご活用下さい。

こちらの物件の空室状況

所在階 賃料 共益費 / 管理費 間取り 専有面積 敷金 礼金 お気に入り 物件詳細
9階 12.3万円 15,000円 / - 1K 22.79m2 0ヶ月 0ヶ月 お気に入り 物件詳細
10階 10.8万円 15,000円 / - 1K 22.65m2 0ヶ月 0ヶ月 お気に入り 物件詳細
10階 11.9万円 15,000円 / - 1K 22.59m2 0ヶ月 0ヶ月 お気に入り 物件詳細
044-210-0330
エリア・エステート川崎店
お問い合わせNO:RHS-1122918

この物件に似た物件をチェック!


閲覧した物件の履歴

閲覧した物件の一覧を見る

最近検索した条件一覧


初期費用クレジットカード・PayPay決済サービス

気になったら今すぐ!カンタンお問合せ



お問合せ内容必須
【備考欄】
希望条件・来店希望日・その他質問がございましたらご記入ください。
お客様情報
お名前必須
連絡先必須 メールアドレス
電話番号



※ご入力いただいたお客さまの個人情報は、「個人情報の取扱いについて」に基づき適正に取り扱います。
必ずお読みになり、同意の上お問い合わせください。




※ご記入いただいたメールアドレス宛てに、お問合せ内容の確認メールをお送りいたします。
※Yahoo!メールなどのフリーメールをご利用の場合、迷惑メールフォルダに入る場合があります。
 迷惑メールのフォルダ・設定等をご確認下さい。
 


▲ページのTOPへ戻る


お問合せはこちら

エリア・エステート川崎店 044-210-0330