| ||||||||||||||||||||||||||||||||||||||||||||||||||||||||||||||||||||||||||||||||||||||||||||||
|
||||

物件基本情報 |
| 所在地 | 東京都大田区西蒲田7丁目 |
||||
|---|---|---|---|---|---|
| 交通 | JR京浜東北・根岸線 「蒲田駅」 徒歩3分 東急池上線 「蓮沼駅」 徒歩8分 |
||||
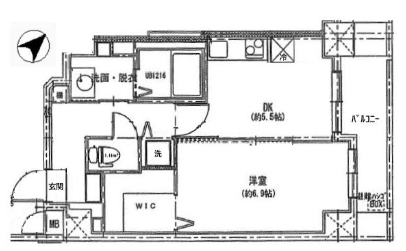
| 種別 / 構造 | マンション / RC造(鉄筋コンクリート造) | 主要採光面 | 北東 | 所在階 / 階数 | 13階 / 13階 |
| 築年月 | 2012年11月 | 間取り | 1K( 洋室5.5畳/DK6.9畳 ) | 専有面積 | 37m2 |
物件詳細情報 |
| 損保 | 要 | 更新料 | 鍵交換代 | - | |
|---|---|---|---|---|---|
| 駐車場 | 近隣駐車場 | 契約期間 借家区分 |
2年 普通 | ||
| 現況 | 居住中 | 入居可能日 | 2026年2月中旬 | 取引態様 | 媒介 |
| 保証人代行会社 | 初回保証料:賃料等の50%、月額保証料:賃料等の1.2% | 仲介手数料 | バイク置き場 | ||
| その他費用 |
|
||||
設備詳細情報 |
| キッチン |
|
|---|---|
| バス・トイレ |
|
| 住空間 |
|
| 設備・サービス |
|
| 特 徴 | |
| 条件・その他 | ガス:都市 / 水道:公営 / 排水:下水 / 2人入居:可 / 保証人代行:必加入 |
| コメント | 【駅チカ】【宅配BOX】【オートロック】 |
| 備 考 | ◆「クレジッドカード支払い可」◆「初期費用の分割・相談」◆「内覧希望」◆「急ぎの入居」◆「法人契約」◆「保証人不要」◆「入居条件の相談」◆等、何でもお気軽にご相談下さい。 |
学区情報 |
| 小学校区 | 大田区立相生小学校 (東京都大田区) |
中学校区 | 御園中学校 (東京都大田区) |
|---|
| 情報更新日:2026年01月16日 | 次回更新予定日:2026年01月30日 |
こちらの物件の空室状況 |
賃貸マンション 15.5万円
蒲田駅 徒歩4分
1DK(31.56u)
【仲介手数料無料】【宅配BOX】【オートロック】
賃貸マンション 14.4万円
蒲田駅 徒歩3分
1K(25.76u)
★駅チカデザイナーズ物件★
賃貸マンション 15万円
蒲田駅 徒歩4分
1DK(33.92u)
2025年11月室内リノベーション施工済み
賃貸マンション 14.2万円
蒲田駅 徒歩6分
1DK(26.28u)
【駅近分譲マンション】【インターネット無料】【オートロック】

|