伊勢佐木長者町の2K賃貸マンション!|エリアエステート
PC
現在
0
件
マイ条件の活用法
お気に入りの活用法
TOPページ
>
横浜市中区の賃貸情報一覧
>
伊勢佐木長者町の2K賃貸マンション!
物件概要
交通機関
横浜市営地下鉄ブルーライン
伊勢佐木長者町駅
徒歩5分
京急本線 日ノ出町 徒歩7分
住所
神奈川県横浜市中区伊勢佐木町
種別/構造
マンション / RC造(鉄筋コンクリート造)
築年数
2025年3月
階層
15階
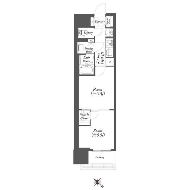
間取り一例
2K
設備・条件
の一例
給湯 / バストイレ別 / シャワー / 追焚機能浴室 / 浴室乾燥機 / 洗面所独立 / 温水洗浄便座 / バルコニー / フローリング / エアコン / クロゼット / シューズボックス / TVインターホン / オートロック / エレベーター / 宅配ボックス / 光ファイバー / CS / BS / CATV / 防犯カメラ / ネット使用料不要 / システムキッチン / 2口コンロ /
こだわり条件から横浜市中区の物件を探す
横浜市中区+給湯
横浜市中区+バストイレ別
横浜市中区+シャワー
横浜市中区+追焚機能浴室
横浜市中区+浴室乾燥機
横浜市中区+洗面所独立
横浜市中区+温水洗浄便座
横浜市中区+システムキッチン
横浜市中区+2口コンロ
横浜市中区+バルコニー
横浜市中区+フローリング
横浜市中区+エアコン
横浜市中区+クロゼット
横浜市中区+シューズボックス
横浜市中区+TVインターホン
横浜市中区+オートロック
横浜市中区+エレベーター
横浜市中区+宅配ボックス
横浜市中区+光ファイバー
横浜市中区+CS
横浜市中区+BS
横浜市中区+CATV
横浜市中区+防犯カメラ
横浜市中区+ネット使用料不要
横浜市中区+室内洗濯機置き場
横浜市中区+保証人不要
最近検索した条件一覧
エリア・エステート横浜本店
〒221-0835
神奈川県横浜市神奈川区鶴屋町1丁目7-21 横浜西口平沼ビル2階
TEL : 045-290-0101
お問合わせNO:
1046786
空室情報の確認や詳細を知りたい方
お問合せはお気軽にお問合せください!
▲ページのTOPへ戻る
横浜市・川崎市の賃貸物件情報はエリアエステートにお任せくださいエリアエステートは横浜市、川崎市で2店舗を展開、地域最大級のお部屋探しサイトです。
お客様一人一人のライフスタイルやお部屋へのこだわりに合わせて最適な物件をご提案します。初期費用を抑えたい方や、物件の築年数や駅からの距離など、
譲れないポイントがある方は、私たちにスタッフにお申し付けください。スタッフ一同お客様のご来店を心よりお待ち申し上げております。一緒に素敵なお部屋を探しましょう!